Restructuration d’une maison de 90m2 en RDC et 1er étage
Objectif :
Restructurer une maison des années 50 restée dans son jus pour recevoir une famille composée des parents et de jumeaux.
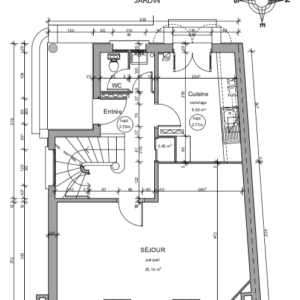
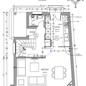
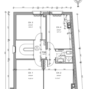
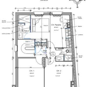
Revoir la distribution des pièces du RDC pour ouvrir la cuisine sur l’espace à vivre en condamnant 2 portes et en créant une nouvelle entrée dans ce nouvel espace. Au 1er étage, au lieu d’agrandir la petite salle d’eau, la création d’une 2ème salle d’eau dans un espace parental a été préféré.
Surface :
Appartement : 90 m2
Durée de l’étude :
4 mois
Durée du chantier :
4 mois
Equipe :
5 entreprises
Photographe :
Eric BOULOUMIE





























